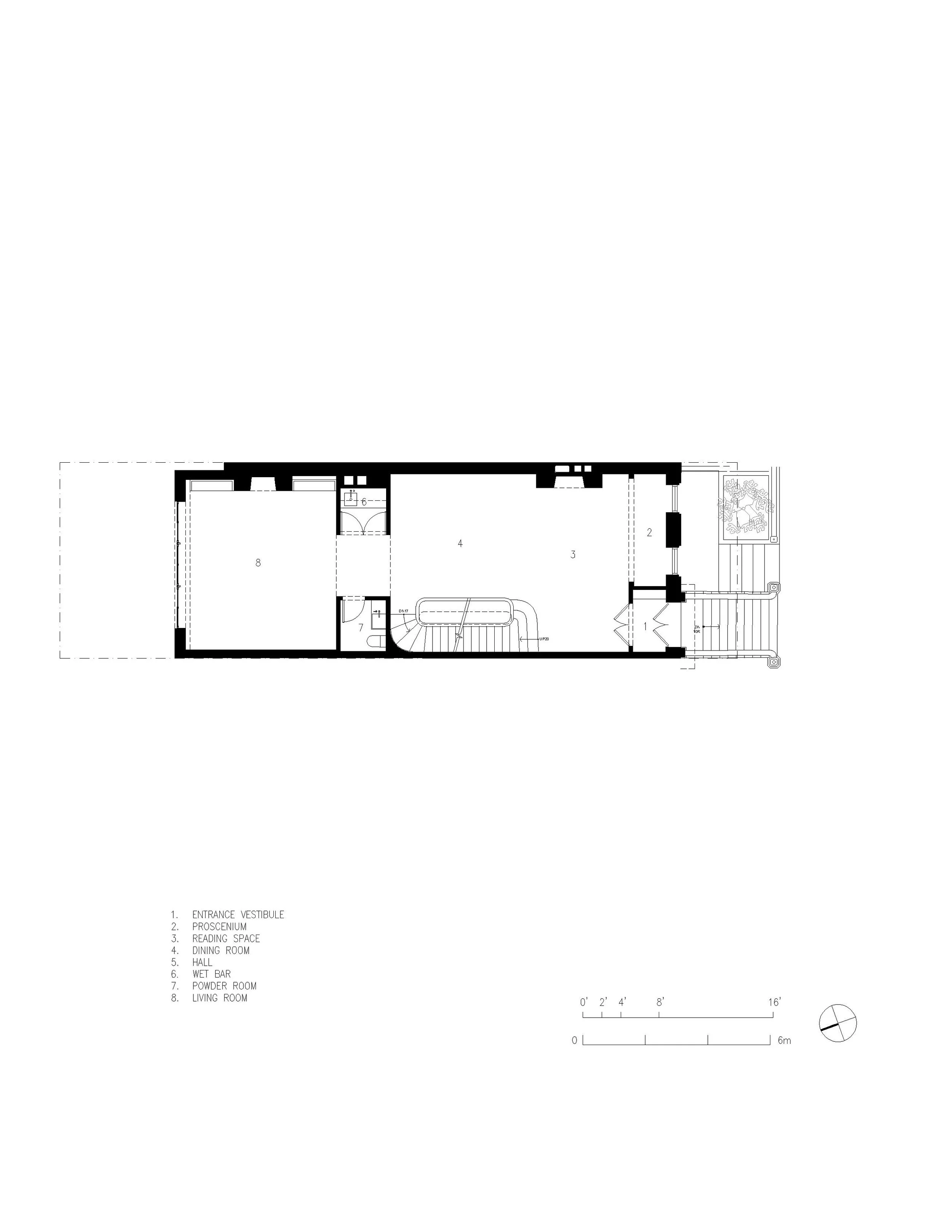
West Village Townhouse

Enlargement of historic Greenwich Village townhouse.